Bought with Kent Patterson
UPDATED:
Key Details
Sold Price $496,140
Property Type Single Family Home
Sub Type Single Family Residence
Listing Status Sold
Purchase Type For Sale
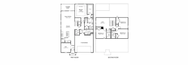
Square Footage 2,448 sqft
Price per Sqft $202
Subdivision Briarcreek
MLS Listing ID 2817135
Sold Date 06/26/25
Bedrooms 4
Full Baths 3
Half Baths 1
HOA Fees $130/mo
HOA Y/N Yes
Year Built 2025
Annual Tax Amount $4,100
Property Sub-Type Single Family Residence
Property Description
Location
State TN
County Davidson County
Rooms
Main Level Bedrooms 1
Interior
Interior Features Extra Closets, Smart Thermostat, Walk-In Closet(s)
Heating Electric
Cooling Electric
Flooring Bamboo, Wood, Slate, Tile
Fireplace N
Appliance Electric Oven, Gas Range, Dishwasher, Disposal, ENERGY STAR Qualified Appliances, Microwave
Exterior
Garage Spaces 2.0
Utilities Available Electricity Available, Water Available
Amenities Available Tennis Court(s), Underground Utilities
View Y/N false
Roof Type Shingle
Private Pool false
Building
Lot Description Hilly
Story 2
Sewer Public Sewer
Water Public
Structure Type Other,Stucco
New Construction true
Schools
Elementary Schools A. Z. Kelley Elementary
Middle Schools Thurgood Marshall Middle
High Schools Cane Ridge High School
Others
HOA Fee Include Gas,Insurance,Sewer
Senior Community false
Special Listing Condition Standard

GET MORE INFORMATION




